SISTEMA DI TUBAZIONI PER VUOTO CENTRALE PERMANENTE

I grandi impianti di approvvigionamento del materiale vengono sempre più azionati con vuoto centrale permanente. Contrariamente agli impianti da vuoto centrali tradizionali, con il vuoto centrale permanente è possibile dotare di vuoto contemporaneamente più unità di trasporto pneumatico. In questo modo divengono possibili portate di materiali superiori e i costi di energia possono essere ridotti con un contemporaneo aumento della sicurezza dell’impianto e dell’attività.

Offriamo il sistema di tubazioni adatto con punti di allacciamento per le unità di trasporto pneumatico nonché allacciamenti di processo per sensori, soffianti e filtri centrali.

vuoto centrale

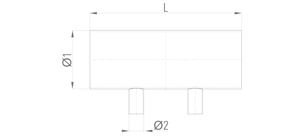
Raccordo a T semplice
  • in alluminio
  Ø1 Ø2 L
VL.T.100.050.1.AL 100 50 315
VL.T.100.060.1.AL 100 60.3 315
VL.T.150.050.1.AL 150 50 315
VL.T.150.060.1.AL 150 60.3 315
VL.T.150.100.1.AL 150 100 315
VL.T.200.050.1.AL 200 50 315
VL.T.200.060.1.AL 200 60.3 315
VL.T.200.100.1.AL 200 100 315
VL.T.300.100.1.AL 300 100 550
VL.T.300.200.1.AL 300 200 550
Raccordo a T doppio
  • in alluminio
  Ø1 Ø2 L
VL.T.100.060.2.AL 100 60.3 515
VL.T.150.050.2.AL 150 50 515
VL.T.150.060.2.AL 150 60.3 515
VL.T.200.050.2.AL 200 50 515
VL.T.200.060.2.AL 200 60.3 515
Raccordo a T quadruplo e quintupla
  • in alluminio
Raccordo a T quadruplo
  Ø1 Ø2 L
VL.T.100.050.4.AL 100 50 915
VL.T.150.050.4.AL 150 50 915
VL.T.150.060.4.AL 150 60.3 915
VL.T.200.050.4.AL 200 50 915
VL.T.200.060.4.AL 200 60.3 915
Raccordo a T quintupla
  Ø1 Ø2 L
VL.T.100.060.5.AL 100 60.3 1115
Raccordi avvitati
  • in acciaio inox
  Ø
FS.AST.050.15.140.20.CR 50
FS.AST.060.15.140.20.CR 60.3
Tubo di regolazione
  • Saracinesca di regolazione vuoto con volano
  • Allacciamento per manichetta pneumatica da 8 mm
  Ø
VL.T.REG.050.CR 50
VL.T.REG.060.CR 60.3
Tubo di lavorazione
  • in alluminio
  Ø
VL.PROCESS.150.050.200.AL 150
VL.PROCESS.200.050.200.AL 200
Gomito 45°
  • in alluminio
  Ø L1 L2
VL.W.45.100.AL 100 250 250
VL.W.45.150.AL 150 250 250
VL.W.45.200.AL 200 250 250
VL.W.45.300.AL 300 300 300
Raccordo a T
  • in alluminio
  Ø L1 L2
VL.T.100.100.1.AL 100 450 250
VL.T.150.150.1.AL 150 450 250
VL.T.200.200.1.AL 200 450 250
VL.T.300.300.1.AL 300 650 350
Gomito 90°
  • in alluminio
  Ø L1 L2
VL.W.90.100.AL 100 150 150
VL.W.90.150.AL 150 250 250
VL.W.90.200.AL 200 250 250
VL.W.90.300.AL 300 350 350
Cappuccio di chiusura
  • in allumino / plastica, nero
  Ø L Materiale
VL.KAPPE.040.KU 40 55 plastica, nero
VL.KAPPE.050.KU 50 55 plastica, nero
VL.KAPPE.060.KU 60.3 55 plastica, nero
VL.KAPPE.076.KU 76.1 55 plastica, nero
VL.KAPPE.100.AL 100 110 alluminio
VL.KAPPE.150.AL 150 110 alluminio
VL.KAPPE.200.AL 200 110 alluminio
VL.KAPPE.300.AL 300 160 alluminio
Connettori per tubi
  • Manicotto zincato
  Ø L n
RV.20.100.150.3.02.VZ 100 150 3
RV.20.150.150.3.02.VZ 150 150 3
RV.30.200.200.4.02.VZ 200 200 4
Tubazione
  • in alluminio
  • fornita nelle lunghezze commerciali di 6 m
  Ø
FR.100.020.AL 100
FR.150.030.AL 150
FR.200.050.AL 200
FR.300.040.AL 300
Riduzione
  • in acciaio inox
  Ø1 Ø2 L
VL.RED.150.089.CR 150 88.9 330
VL.RED.150.100.CR 150 100 330
VL.RED.200.114.CR 200 113.5 330
VL.RED.200.150.CR 200 150 330
VL.RED.200.167.CR 200 167 330
VL.RED.300.200.CR 300 200 428
Fascetta ad arco
  • in acciaio inox
  Per tubo Ø
VL.SCH.100.CR 100
VL.SCH.150.CR 150
VL.SCH.200.CR 200

Avete domande?

Siamo a vostra disposizione dal lunedì al giovedì dalle 07:00 alle 16:00. Il venerdì siamo raggiungibili fino alle 15:00 oppure potete semplicemente inviarci un'e-mail!